Hoofdafbeelding Talmastraat 57
Foto 2
Foto
Home Aanbod Talmastraat 57

Talmastraat 57

9602 GZ Hoogezand

€ 199.500,- k.k.

Aan de Talmastraat in Hoogezand bevindt zich dit appartement - type maisonnette - met een praktische indeling, verdeeld over twee woonlagen. De woning is gelegen in een woonwijk met voorzieningen zoals winkels, scholen en openbaar vervoer in de directe omgeving.

Begane grond: centrale entree met trappenhuis.
Op de eerste verdieping bevinden zich de woonkamer, de keuken en een separaat toilet. De ruimtes zijn functioneel, maar dienen gemoderniseerd te worden. Dit biedt de koper de mogelijkheid om de verdieping geheel naar eigen smaak in te richten.
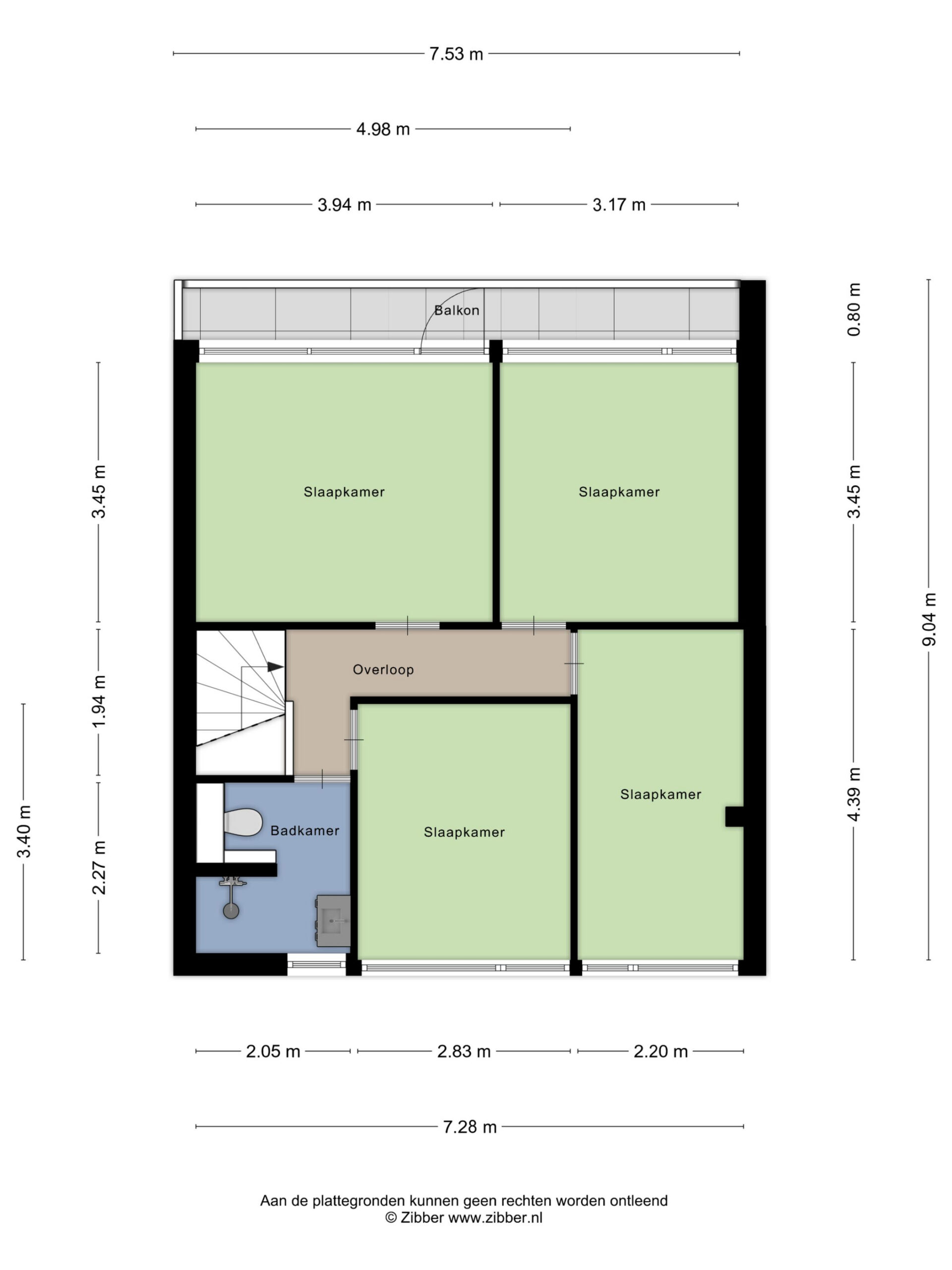
De tweede verdieping beschikt over vier slaapkamers, wat het appartement geschikt maakt voor een gezin of voor wie behoefte heeft aan meerdere kamers, bijvoorbeeld voor werk of hobby. Ook deze verdieping vraagt om onderhoud en afwerking.

De woning verkeert in een eenvoudige staat van onderhoud en dient op meerdere punten te worden opgeknapt. Hierdoor is het object met name interessant voor kopers die niet terugschrikken voor renovatiewerkzaamheden en op zoek zijn naar een woning die zij geheel naar eigen inzicht willen aanpassen.

De ligging aan de Talmastraat is praktisch, met goede bereikbaarheid richting het centrum van Hoogezand en uitvalswegen naar omliggende plaatsen.

Extra informatie:
- Vereniging van eigenaren aanwezig maar niet actief;
- snelle overdracht mogelijk;
- appartement tevens als belegging voor verhuur aan te kopen.

Algemeen

  • StatusVerkocht onder voorbehoud
  • Koopprijs€ 199.500,- k.k.
  • AanvaardingIn overleg

Bouwvorm

  • Soort objectAppartement
  • Soort appartementMaisonnette
  • Bouwjaar1970
  • BouwvormBestaande bouw
  • LiggingenIn woonwijk

Indeling

  • Woonoppervlakte108 m2
  • Inhoud355 m3
  • Aantal kamers5
  • Aantal slaapkamers4
  • Aantal badkamers1
  • Aantal woonlagen2

Energie

  • EnergieklasseE
  • CombiketelNee

Buitenruimte

  • TuinGeen tuin
  • AchteromNee

Bergruimte

  • Schuur / BergingAangebouwd steen
  • Totaal aantal1

Parkeergelegenheid

  • Parkeer faciliteitenOpenbaar parkeren
  • GarageGeen garage

Dak

  • Soort dakPlat dak
  • Materiaal dakBitumineuze Dakbedekking

Overig

  • Permanente bewoningJa
  • Onderhoud binnenGoed
  • Onderhoud buitenGoed
  • Huidig gebruikWoonruimte
  • Huidige bestemmingWoonruimte

Hoogezand

Gorecht-Oost 175,
9603 AE Hoogezand
+31598 22 11 11

Vergelijkbare woningen

Hoofdafbeelding Bartholomeus vd Helststr 113

Bartholomeus vd Helststr 113

9601 CC Hoogezand

€ 187.500,- k.k.

Hoofdafbeelding Stationsweg 39

Stationsweg 39

9601 BH Hoogezand

€ 225.000,- k.k.

Verkocht onder voorbehoud
Hoofdafbeelding Jacob van Ruysdaelstraat 5

Jacob van Ruysdaelstraat 5

9601 XL Hoogezand

€ 237.500,- k.k.

Verkocht onder voorbehoud
Hoofdafbeelding Bilderdijklaan 68

Bilderdijklaan 68

9602 AM Hoogezand

€ 250.000,- k.k.