Bartholomeus vd Helststr 113
9601 CC Hoogezand
€ 187.500,- k.k.
9602 HH Hoogezand
€ 309.995,- k.k.
Komeet 21 te Hoogezand is een ruime en goed onderhouden hoekwoning met 4 slaapkamers! Het woonhuis is gelegen in een kindvriendelijke woonwijk en is vanwege de ligging en grootte een ideale gezinswoning met comfort, energiezuinige voorzieningen en een fijne ligging nabij alle dagelijkse voorzieningen.
De woning is nagenoeg volledig voorzien van HR++ glas en beschikt op de begane grond over kunststof kozijnen. Dankzij de bodem- en vloerisolatie, zonnepanelen en energielabel B woont u hier niet alleen comfortabel, maar ook energiezuinig.
De woning ligt op korte afstand van een supermarkt en meerdere basisscholen, wat het een perfecte locatie maakt voor gezinnen. Daarnaast bevindt het prachtige Zuidlaardermeer zich op fietsafstand, evenals het groene Gorechtpark — ideaal voor ontspanning, sport en recreatie.
Indeling: voorentree; hal met meterkast en toilet; woonkamer met veel lichtinval; tuingerichte eethoek; halfopen keuken in hoekopstelling die voorzien is van gasfornuis, afzuigkap, oven, koelkast en vaatwasser; bijkeuken met witgoedaansluiting en achterentree.
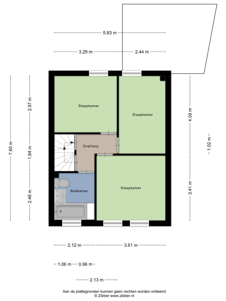
Eerste verdieping: overloop; drie slaapkamers; badkamer met ligbad, wastafelmeubel en toilet.
Tweede verdieping: overloop met bergruimte en cv-opstelling; vierde slaap-/hobby-/werkkamer.
Extra informatie:
- tuin voorzien van tuinhuis en handige fietsenberging;
- kunststof kozijnen op de begane grond met HR++ glas;
- 10 op zuiden gelegen zonnepanelen;
- goed onderhouden en instapklare woning;
- snel te aanvaarden!
Kortom: een ruime, energiezuinige en uitstekend gelegen hoekwoning waar u zo in kunt. Interesse? Maak snel een afspraak voor een bezichtiging!
Hoogezand
9601 CC Hoogezand
€ 187.500,- k.k.
9602 EK Hoogezand
€ 350.000,- k.k.
9602 CJ Hoogezand
€ 437.500,- k.k.
9601 BH Hoogezand
€ 225.000,- k.k.